


180 350 ₽/м²
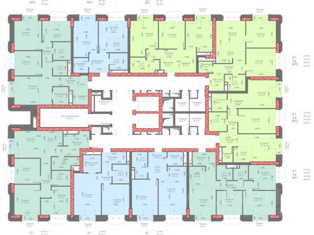
Бизнес-класс во Владикавказе. Сдача в ноябре 2026 года. Закрытый двор без машин, подземный паркинг и FaceID. Инфраструктура для своих: коворкинг, Хадзар, консьерж-сервис 24/7. Надежный актив: фасад из стеклофибробетона и свободная планировка. Устали переживать за безопасность детей во дворе и тратить время на поиск парковки? Или ищете твердый актив, который защитит ваши деньги от инфляции и вырастет в цене? ЖК "Произведение на Первомайской" — это не просто дом, это ваш личный безопасный контур и новый сценарий жизни во Владикавказе. • Управляемая жизнь без бытового стресса Вы заезжаете в отапливаемый подземный паркинг и поднимаетесь на скоростном лифте прямо на свой 8-й этаж. Работаете на удаленке? Спуститесь в резидентский коворкинг на первом этаже — это ваши 2 часа абсолютной тишины. Для встреч с соседями своего уровня и мероприятий предусмотрен современный внутридомовой Хадзар и творческие мастерские. • Безопасный семейный контур Ваши дети гуляют в закрытом дворе-экосистеме без машин. На территорию не попадет случайный прохожий — доступ только по цифровым ключам и Face ID, а по периметру работает круглосуточное видеонаблюдение. Внутри двора: "секретный сад" для тихого отдыха и современные игровые площадки с безопасным покрытием. В 10 минутах пешком — 6 школ и 7 детских садов. • Твердый актив и свобода решений Вместо дешевой штукатурки мы используем фасад из премиального архитектурного стеклофибробетона — здание не потеряет вид и через 20 лет, а значит, квартира сохранит высокую ликвидность. Квартира передается в свободной планировке, что позволяет реализовать индивидуальный дизайн и полностью адаптировать пространство под себя. — Срок сдачи: Ноябрь 2026 года (монолитная технология с повышенной сейсмоустойчивостью). — Потолки 3 метра: Максимум воздуха и естественного света за счет панорамного остекления. — Никаких лишних вещей в квартире: Для жителей предусмотрены индивидуальные кладовые и колясочные. — Сервис уровня отеля: Круглосуточный консьерж в лобби решит мелкие бытовые вопросы. — Локация: 10-15 минут пешком до Дендрария, вокруг 7 фитнес-центров и супермаркеты. Характеристики квартиры — Комнат: 2 — Площадь: 58.5 м² — Этаж: 8 — Планировка: Свободная — Формат: Бизнес-класс Остались сомнения или хотите посмотреть, как можно распланировать эти 58.5 квадратов? Напишите в чат Авито слово "КАТАЛОГ" — я отправлю вам PDF-презентацию с вариантами планировок и актуальными ценами, а также предложу удобное время для визита в офис. Ищете, где купить квартиру во Владикавказе? ЖК Произведение на Первомайской предлагает квартиры бизнес-класса от застройщика. Данная 2-комнатная квартира в новостройке отлично подойдет для семьи. Надежная монолитная застройка, купить квартиру с паркингом, безопасный двор, элитная недвижимость Владикавказ, свободная планировка, инвестиции в недвижимость, купить жилье рядом со школой и парком. Купить 2-комнатную квартиру с отделкой от застройщика в Владикавказе.

















































































































